- Home
- RODINNÉ DOMY
- Rodinný dům 134
Rodinný dům 134
| Typ: | patrové, zděný dům |
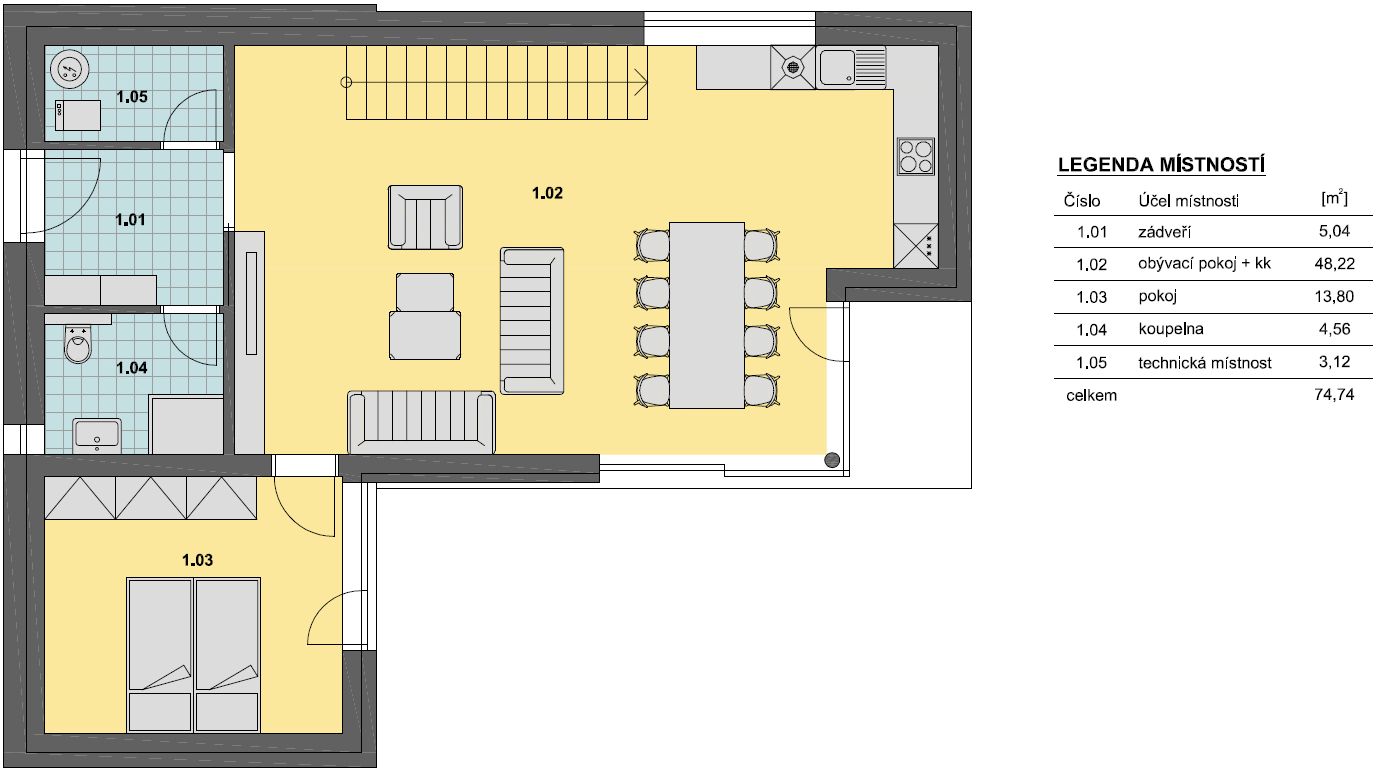
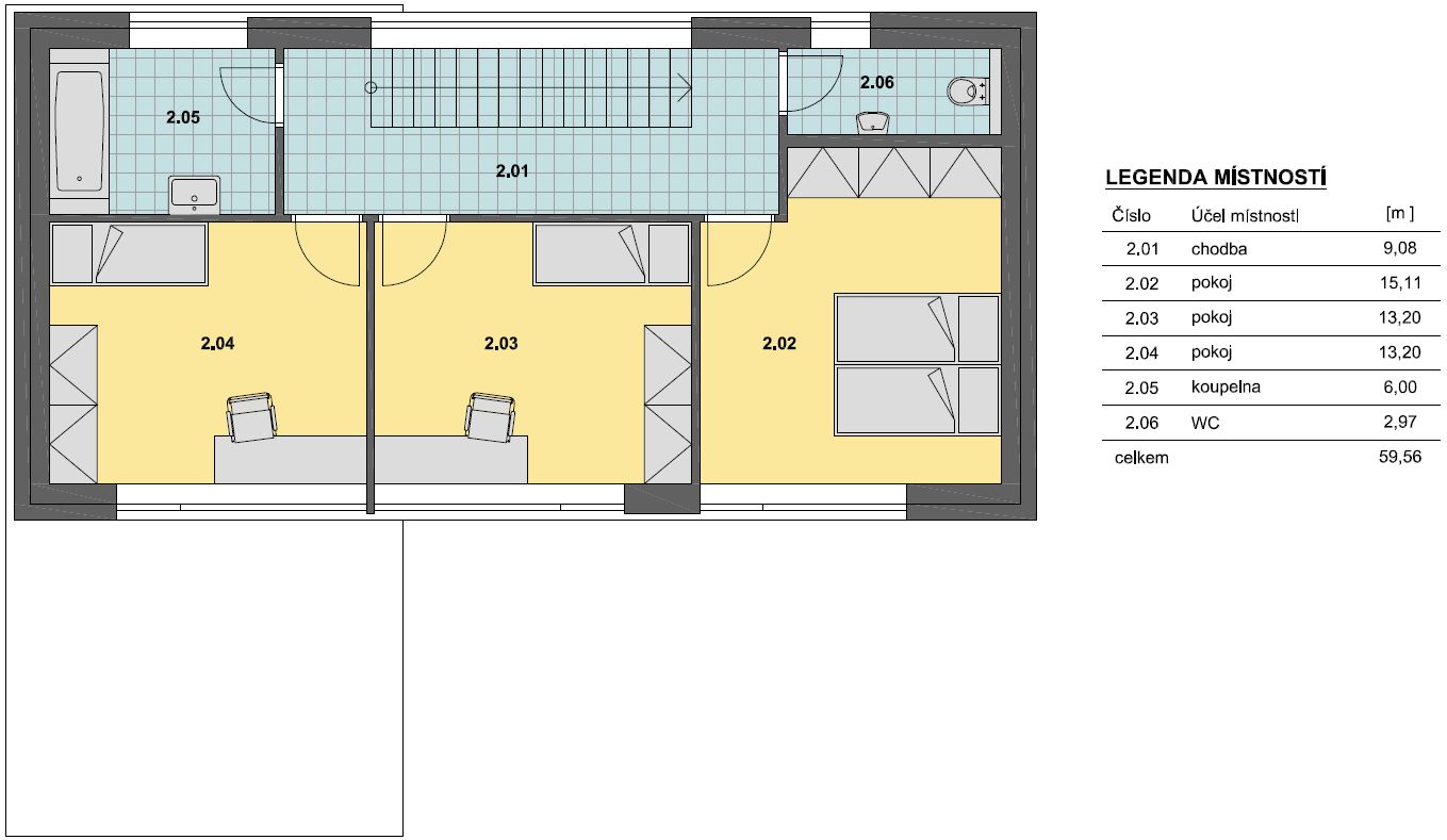
| Dispozice: | 5 + kk |
| Zast. plocha: | 98,30 m2 |
| Užit. plocha: | 134,30 m2 |
| Dop. počet uživatelů: | 6 |
| Vnější rozměry: | 13,00 x 10,25 m |
| Cena hrubé stavby | ||
| bez DPH: | 1 733 000 Kč | |
| s DPH: | 1 992 950 Kč | |
| Cena domu na klíč | ||
| bez DPH: | 3 289 000 Kč | |
| s DPH: | 3 782 350 Kč | |
Popis domu
Pro koho a kam je dům vhodný?
Komfortní rodinný dům je určen moderní rodině, která ocení trendy současné architektury. Svým vzhledem je dům vhodný do městské vilové zástavby.
Koncept a dispozice
Dům vychází z konceptu funkcionalistické vily. Řešení dispozice a vnitřních prostor zachovává současné požadavky na bydlení. V přízemí je hlavní obytný prostor a ložnice pro hosty, v patře se nachází ložnicová část se zázemím. Velké prosklené plochy navozují pocit luxusu a předurčují k modernímu pojetí interiéru.
Vzhled a materiály
Patrový objekt je tvořen průnikem dvou kvádrů a zastřešen plochou střechou. Kompaktní hmota je prořezána pásy oken pro intenzivní propojení interiéru a exteriéru. Materiálové řešení a barevnost odpovídá střídmosti konceptu funkcionalistické vily.
Ekologie a konstrukce
Kompaktní hmota, konstrukce domu a její tepelně technické vlastnosti jsou předpokladem pro zařazení objektu do nízkoenergetického standardu. Vytápění lze realizovat s tepelným čerpadlem vzduch – vzduch stejně dobře jako s plynovým kotlem.
Variabilita
Každý dům lze dle Vašeho přání dispozičně i velikostně upravovat.
Stavba hrubé stavby X stavba domu na klíč:
| Popis | Hrubá stavba |
Dům na klíč |
| Projekt, stavební povolení | ||
| Zemní práce | ||
| Základy | ||
| Svislé konstrukce - obvodové zdivo, příčky |
||
| Vodorovné konstrukce - betonové podlahy |
||
| Stropní konstrukce | ||
| Úpravy povrchů vnitřní - omítky |
||
| Úpravy povrchů vnější - zateplení |
||
| Podlahy - plovoucí podlahy, dlažby |
||
| Výplně otvorů - okna, dveře, žaluzie,... |
||
| Přípojky do 10bm + vnitřní kanalizace | ||
| Lešení | ||
| Přesuny hmot | ||
| Izolace proti vodě | ||
| Koupelna - umyvadlo, sprch. kout, toaleta |
||
| Vytápění + tepelné čerpadlo | ||
| Elektroinstalace | ||
| Tesařské konstrukce - krov, vazníky |
||
| Klempířské konstrukce - střecha |
||
| Klempířské konstrukce - parapety |
||
| Krytiny |
||
| Malby + nátěry |
Podrobnější informace o hrubé stavbě naleznete zde
Podrobnější informace o stavbě na klíč naleznete zde
Změna cen vyhrazena.
© 2014 - ŠVÁRA-STAVBY a.s. - všechna práva vyhrazena
